La Paeria de Balaguer ha presentat l'esborrany del projecte d'ampliació de l'escola Mont-roig de Balaguer, a partir del qual es començarà l'elaboració del projecte definitiu

Per Ràdio Balaguer
601 visites
8Ab635Bcf649B7Beec5Dfaedee6B780Apresentaciapmpliaciprojecteescolamontroigimg2575

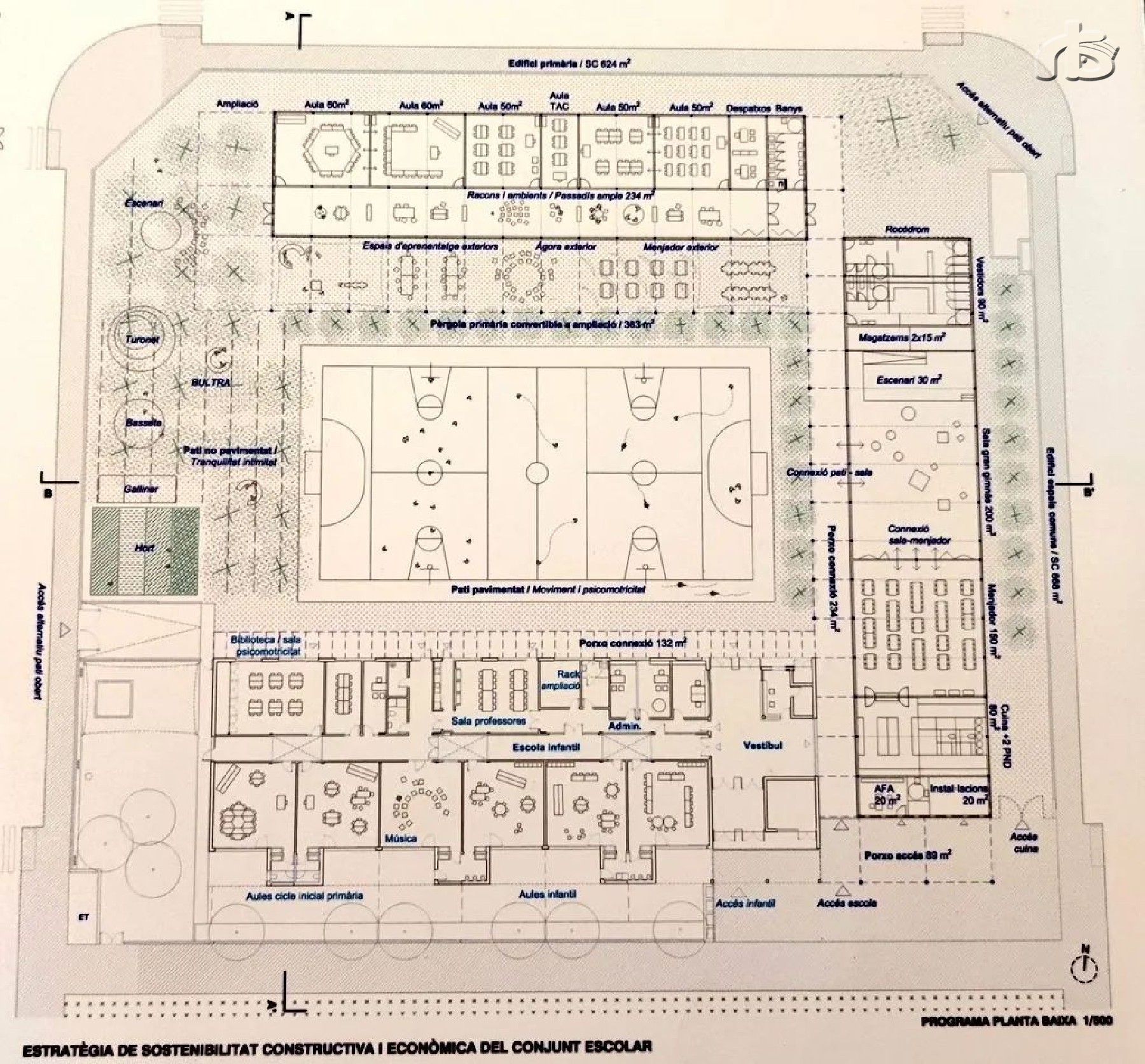
Aquest dimecres s'ha presentat un esborrany del projecte guanyador de la futura ampliació del col·legi Mont-roig a partir del qual es començarà ara la redacció del projecte definitiu.

L'esborrany és una versió aproximada del que pot acabar sent el nou centre, tant pel que fa als materials de construcció com pel que fa al disseny arquitectònic.

La futura obra preveu la retirada dels mòduls prefabricats i la continuació del propi edifici albergant noves aules, menjador, gimnàs, vestuaris així com una pista esportiva i zones verdes.

Segons ha explicat el paer en cap, Jordi Ignasi Vidal, la nova escola serà molt funcional i susceptible de canvis i ampliacions en un futur si són necessaris amb "la preconstrucció del que seria la segona fase deixant només l'estructura". El nou centre, ha explicat el paer, es construirà tot en planta baixa i comptarà amb aules amb parets mòbils. A més, ha assenyalat, "acabarà quedant una escola molt versàtil en la línia del que es va demanar en el procés participatiu, és a dir, que fos una escola que s'adeqüés al sistema educatiu del Mont-roig". El nou col·legi tindrà, a més, passadissos amb molta llum i també s'aposta per l'eficiència energètica, amb la instal·lació de plaques solars, aerotèrmia i sòl radiant.  Vidal també ha apuntat que "es faran reformes al que serà l'edifici antic, on es posaran claraboies a la part del passadís que ara és molt fosc i s'obriran un tipus de portes determinades que ajudaran a la ventilació".

La licitació per a la redacció del projecte de la nova escola es va obrir al setembre i s'hi van presentar onze empreses. D'aquestes, només cinc van passar a l'última fase en la qual van haver de presentar una proposta més formal. Finalment, ha estat un jurat qui, després d'haver fet una anàlisi de les diferents opcions, ha escollit la que ha considerat millor. La redacció del projecte bàsic, el projecte executiu i la posterior direcció d'obra per l'ampliació de l'escola Mont-roig ha comptat amb un pressupost de 175 mil euros.

A partir d'ara es farà la redacció del projecte definitiu que podria estar enllestit en uns 5 mesos. Segons el paer en cap de Balaguer, Jordi Ignasi Vidal, després del procés d'exposició publica i adjudicació, les obres podrien començar a finals d'any i tindrien un període d'execució d'entre 8 i 9 mesos.

Vidal també ha explicat que ara serà l'ajuntament qui avançarà els diners, tot i que espera que a finals d'anys ja es rebi una primera aportació per part del Departament d'Educació, un cop la Paeria justifiqui la despesa realitzada aquest 2023, que el paer en cap calcula que poden ser uns 600.000 euros.

El projecte va sortir a licitació després que, recordem, la Paeria de Balaguer firmés un conveni de col·laboració amb el Departament d'Educació per a l'execució dels treballs d'ampliació d'aquesta escola. El conveni contemplava que fos la Paeria qui  tragués a licitació tant el projecte d'obres com l'execució dels treballs. És l'acord al qual es va arribar amb la conselleria per accelerar la posada en marxa d'aquesta ampliació.

Pel que fa al finançament dels treballs, recordem que a finals del 2021 la Paeria va demanar un préstec de 2,7 milions d'euros dels quals 2,1 milions d'euros es destinaran al projecte i execució d'obres per ampliar el col·legi. Els diners, doncs, els avançarà la Paeria i hi ha el compromís que el Departament d'Educació els retorni a la ciutat en tres anualitats.

El mes destacat

Notícies relacionades

Altres notícies que et poden interessar