L'ajuntament Tiurana projecta la construcció d'un mirador astronòmic Starlight.

Per Ràdio Balaguer
458 visites
D6A48B57B3310098C1A9D830Ae201D12Miradorastronmicstarlight1

Tiurana és una de les zones del Montsec que compta amb el distintiu de cel Starlight, que fan que sigui un punt ideal per a l'observació del cel nocturn.

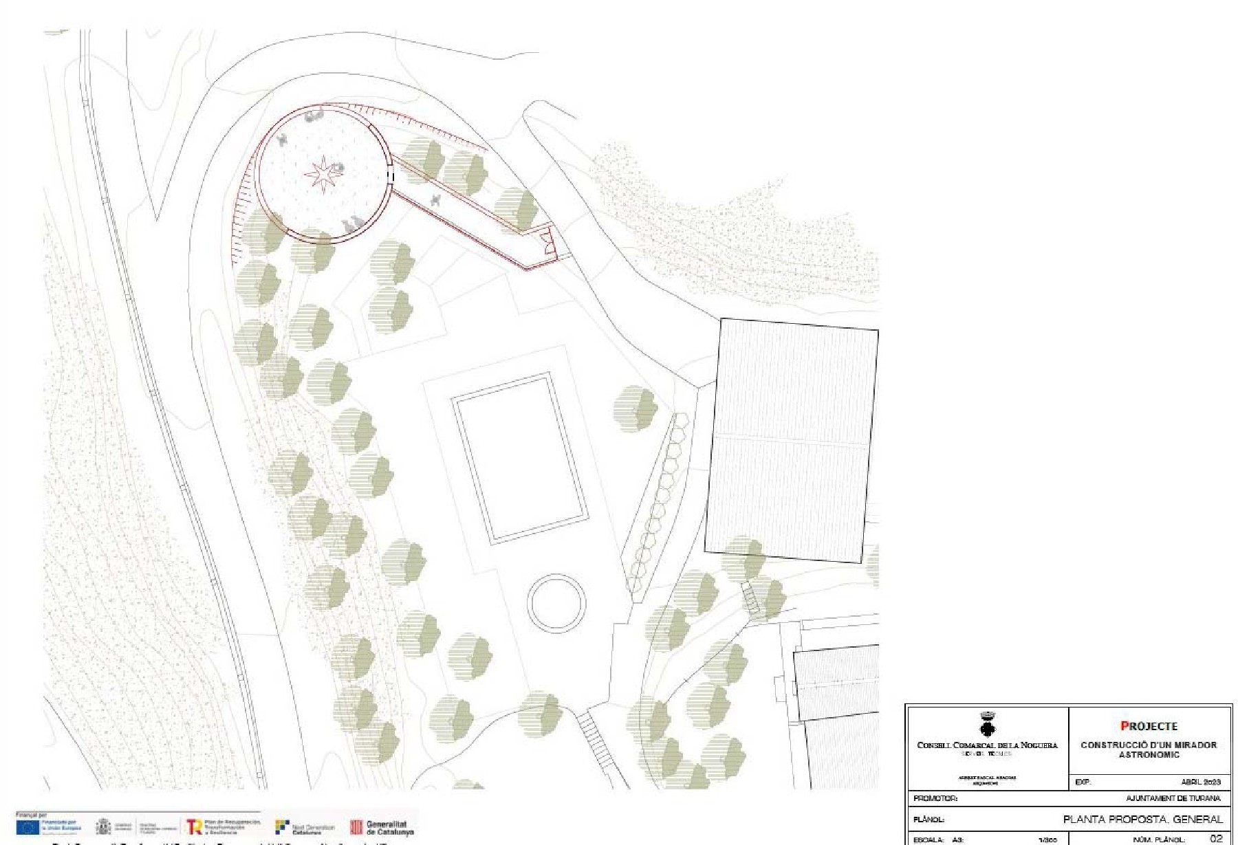
Aquest nou mirador s'instal·larà al costat de la piscina municipal i té un pressupost de 63.500 euros.

Es tracta d'un mirador obert, que entre els objectius, vol promoure l'afició per l'observació del cel i donar a conèixer el cel astronòmic del Montsec. El nou equipament permetrà desenvolupar paral·lelament activitats didàctiques, culturals o lúdiques relacionades amb esdeveniments astronòmics.

Segons ha explicat a Ràdio Balaguer l'alcalde del municipi, Àngel Villarte, aquest mirador està inclòs en diferents projectes finançats amb ajuts dels fons Next Generation per promoure turísticament l'entorn del pantà de Rialb.

El Mirador comptarà amb diferents elements per facilitar l'observació tan de nit, per ubicar per exemple l'estrella polar, com de dia, amb entre d'altre un rellotge solar.

L'ajuntament preveu iniciar les obres del mirador astronòmic properament i finalitzar-les abans de que acabi l'any.

També està previst la instal·lació d'un pèrgola solar per a la càrrega de vehicles i bicicletes elèctriques. De fet l'ajocament té previst la compra de bicicletes per al seu lloguer i promoure l'ecoturisme.  Aquest projecte compta amb un pressupost de 75 mil euros.

El mes destacat

Notícies relacionades

Altres notícies que et poden interessar